À Vendre

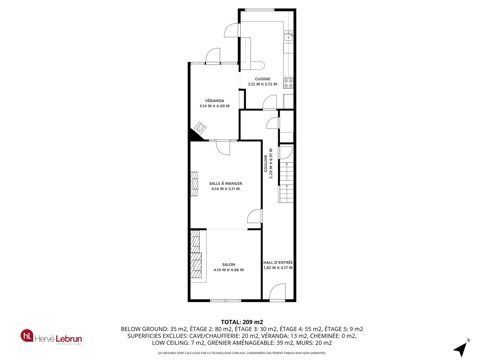
Huy, Hervé Lebrun Immobilier vous présente cette jolie maison de ville, de très beau style. Son intérieur ravira les amateurs de belles hauteurs sous plafond, de boiseries, de parquet et de granito ancien. L'habitation est à rafraîchir mais, de par sa surface bâtie totale de 270 m² agencés sur cinq niveaux, elle dispose de toutes les qualités pour offrir énormément d'espace et de confort de vie à ses futurs occupants. Sa composition: Rez: Hall d'entrée, grand séjour de 38 m², de très beau style avec arcade, cheminées en pierre et marbre, une véranda de 12 m², une cuisine de 16 m². Entresol: Deux pièces polyvalentes de 10 et 7 m², actuellement buanderie et bureau, mais pouvant être réaménagées en une seule grande chambre, un wc av lave-main. 1er étage: Hall de nuit, deux belles chambres de 20 et 14 m², une salle de bain de 7 m². 2ème étage: Grand grenier de 45 m², facilement aménageable en 2 chambres supplémentaires. Sous-sol: Caves sur 54 m², dont buanderie, chaufferie et cave à vin. Extérieur: agréable terrasse couverte, prolongée par un jardin aménagé et bien proportionné. Chauffage central gaz de ville, toiture 2015, châssis pvc, citerne eau de pluie. Excellente situation géographique, dans une rue résidentielle av toutes facilités à proximité immédiate.
  • Meublé Non
  • Surface habitable 170,00 m²
  • Etat À rafraîchir
  • Ascenseur Non
  • Double vitrage Oui
  • Chassis pvc
  • Type de chauffage individuel
  • Type d'énergie du chauffage gaz (chau. centr.)
  • Surface du jardin 150,00 m²
  • Orientation du bâtiment ouest
  • Surface bâtie 270 m²
  • Terrasse 1
  • Garage Non
  • Parking 1
  • Jardin 1
  • Surface terrasse 1 15 m²
  • Orientation de la terrasse 1 ouest
  • Surface de la salle de séjour 38 m²
  • Cuisine Oui
  • Surface de la cuisine 16,5 m²
  • Type de cuisine semi-équipée
  • Nombre de chambres 3
  • Surface de la chambre 1 20 m²
  • Surface de la chambre 2 17 m²
  • Surface de la chambre 3 14 m²
  • Toilettes 2
  • Nombre de salle de bain 1
  • Type de salle de bain bain
  • Grenier Oui
  • Caves Oui
Estimation gratuite