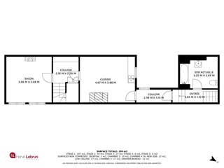
Remise en vente après option. Hervé Lebrun Immobilier vous présente cet immeuble commercial mixte, parfaitement situé sur la Grand Place de Huy. Le bâtiment est à rénover complètement (sauf toiture qui est neuve), mais il dispose d'excellents atouts: Deux façades avec vitrines sur la Grand Place et une façade avec vitrine potentielle Avenue des Ardennes, axe hyper fréquenté disposant de parking. Le rez, entièrement commercial, peut être exploité en une seule surface transversale de 87 m² avec deux entrées, ou en deux commerces de 60 m² côté Grand Place, et de 27 m² + mezzanine Av des Ardennes. Une cave complète le rez. L'étage, agencé sur trois niveaux, peut être communicatif au commerce, ou totalement indépendant avec entrée séparée Av des Ardennes. Il dispose d'une surface bâtie de 135 m² et est agencé en triplex avec séjour, cuisine, 3 ou 4 chambres, sdb, bureau/grenier. Une rénovation de qualité ferait de ce triplex un joyau dans le coeur historique de la ville, car chaque pièce de vie offre une vue sur la Grand Place ou sur la citadelle. De plus, une terrasse panoramique orientée sud et vue sur la citadelle est envisageable. Excellente opportunité pour exploitation personnelle, ou pour investissement locatif.
Nous utilisons des cookies pour vous offrir la meilleure expérience sur notre site. Vous pouvez en savoir plus sur les cookies que nous utilisons ou les désactiver dans les
paramètres de cookies