À Vendre

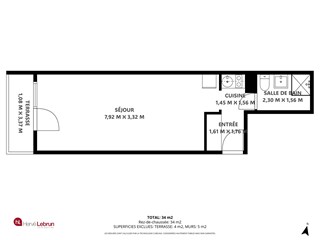
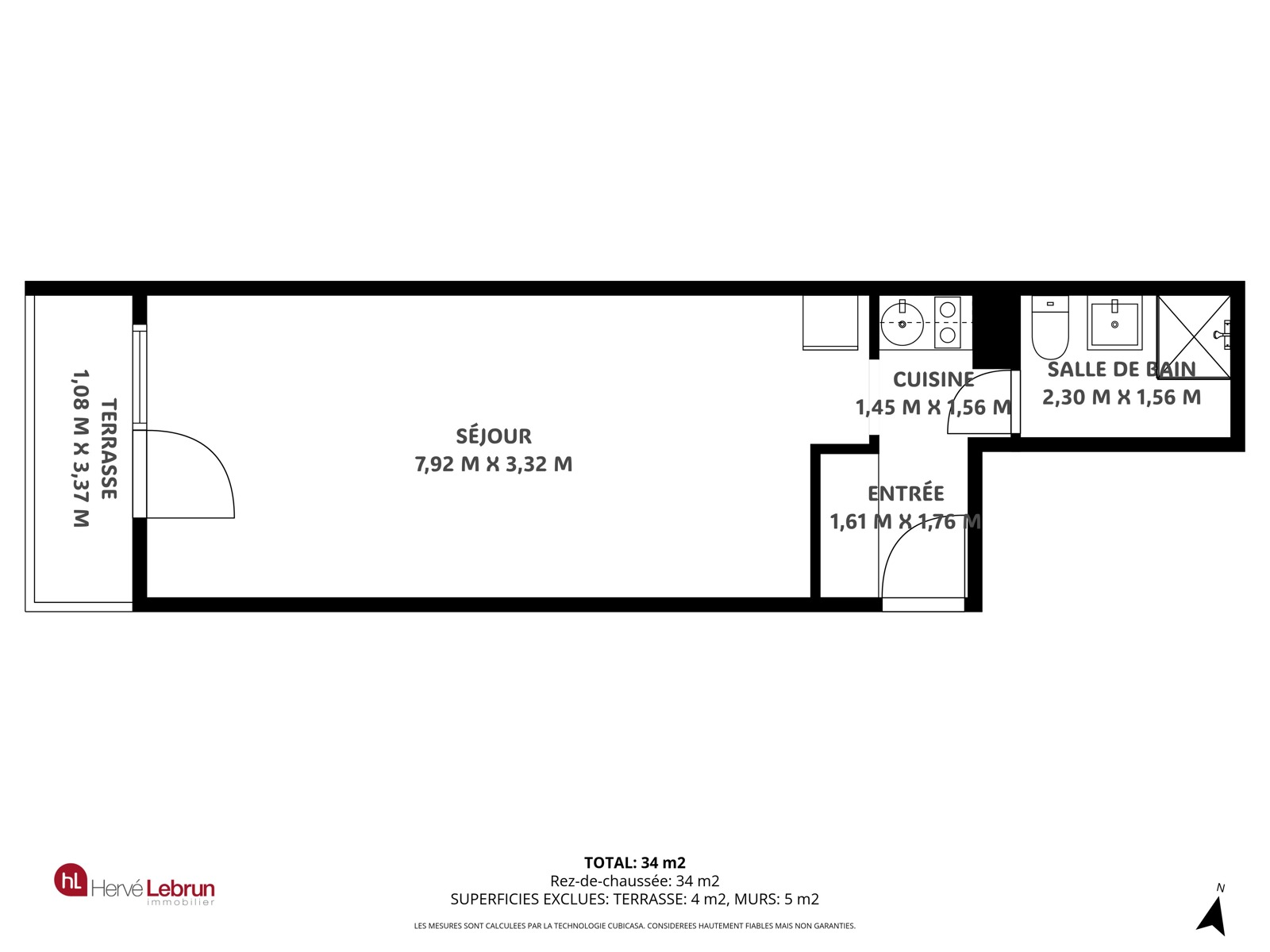
Dans la Résidence Services Hamoir, réputée pour le confort qu'elle assure aux séniors, Hervé Lebrun Immobilier vous propose ce beau flat avec terrasse. Situé au 1er étage, côté jardin, il offre quiétude, luminosité, et une très belle vue sur la verdure. D'une surface de 40 m², il se compose comme suit: Hall avec placards, beau séjour lumineux de 24 m², donnant accès à la terrasse, un coin kitchenette av deux taques vitro, un four combi et un frigo, une salle de douche équipée d'une douche italienne, d'un lavabo av meuble, un wc , une terrasse de 4 m² très agréable, orientée S-O. Electricité conforme. La résidence Hamoir est parfaite pour y couler des jours heureux, grâce aux nombreux services qu'elle propose (restaurant, surveillance 24h/24, activités variées), et à ses très confortables espaces communs (jardin, salon tv, bibliothèque, salle de jeux, salle de réunion/réception, superbe terrasse panoramique sur le toit). Possibilité d'acquérir l'appartement pour occupation personnelle ou pour investissement locatif.
  • Meublé Non
  • Surface habitable 40,00 m²
  • Etat À rafraîchir
  • Parlophone Oui
  • Ascenseur Oui
  • Double vitrage Oui
  • Chassis bois
  • Type de chauffage collectif
  • Type d'énergie du chauffage gaz (chau. centr.)
  • Surface du jardin 150,00 m²
  • Surface bâtie 40 m²
  • Terrasse 1
  • Garage Non
  • Jardin 1
  • Surface terrasse 1 4 m²
  • Orientation de la terrasse 1 sud-ouest
  • Surface de la salle de séjour 24 m²
  • Cuisine Oui
  • Surface de la cuisine 2 m²
  • Type de cuisine semi-équipée
  • Nombre de chambres 1
  • Toilettes 1
  • Nombre de salle de bain 1
  • Salle de douche 1
  • Surface de la salle de bain 4 m²
  • Type de salle de bain douche
Estimation gratuite