À Louer

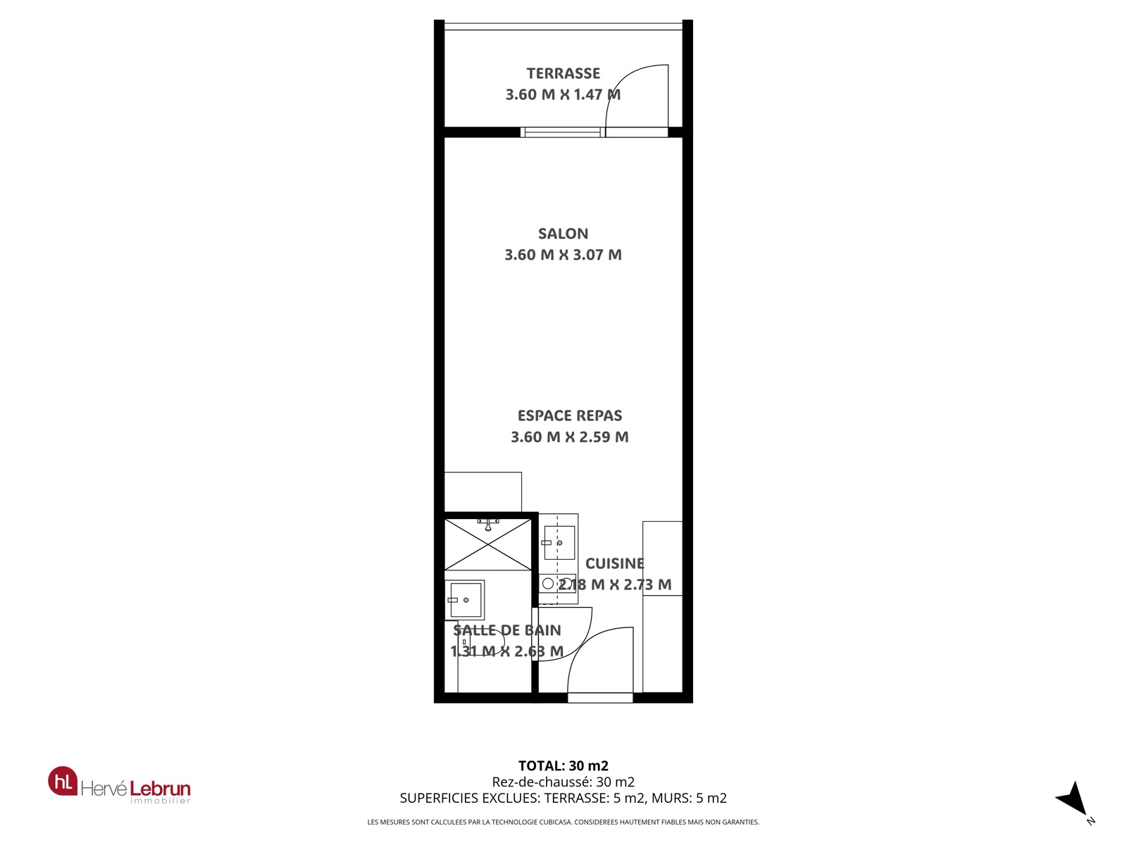
Gembloux: très beau studio situé au 2ème étage d'une résidence avec parc et parking, à 300 m de la gare. le flat est très lumineux et dans un état impeccable, il se compose comme suit: Beau séjour de 21 m², très lumineux et donnant sur une terrasse de 5 m² orientée plein sud, un coin cuisine (évier, deux taques vitro, hotte, meubles), une sdd avec douche italienne, lavabo, wc. A l'extérieur, de beaux espaces verts parfaitement entretenus permettent de profiter des beaux jours. Possibilité de louer un emplacement de parking en sous-sol. Situation géographique idéale à Gembloux, dans un coin de verdure et à proximité immédiate des commerces, gares, bus et N4 et E411. Loyer: 570€/mois + provision de charges locatives (chauffage, eau et communs) : 180€/mois. Libre de suite.
  • Meublé Non
  • Surface habitable 30,00 m²
  • Etat Remis à neuf
  • Parlophone Oui
  • Ascenseur Oui
  • Chassis pvc
  • Type de chauffage collectif
  • Type d'énergie du chauffage mazout (chauf. centr.)
  • Surface du jardin 200,00 m²
  • Nombre d'étages 7
  • Surface bâtie 30 m²
  • Terrasse 1
  • Garage Non
  • Jardin 1
  • Surface terrasse 1 5 m²
  • Orientation de la terrasse 1 sud
  • Surface de la salle de séjour 21 m²
  • Cuisine Oui
  • Surface de la cuisine 5,5 m²
  • Type de cuisine semi-équipée
  • Toilettes 1
  • Nombre de salle de bain 1
  • Salle de douche 1
  • Type de salle de bain douche
Estimation gratuite